How to Design and Build a Better Bar with Efficiency in 2025

Modern upscale bar interior with illuminated circular ceiling feature and navy blue seating, used as the thumbnail for a video on better bar design

Watch: How to design and build a better bar — essential layout principles, ergonomic insights, and modern bar design strategies.

BAR DESIGN IDEAS – HOW TO DESIGN AND BUILD A BETTER DIY BAR

How do you design and  build a better DIY bar? A proper equipment layout and efficiently-designed bartender cocktail stations can turn a bar into a cash cow. Many bars only need one bartender during slow periods but two or more during peak periods. How are bars designed to meet these demands?

STUCK ON YOUR BAR DESIGN? CALL US NOW…

HOW WORKSTATIONS INNOVATED THE ASSEMBLY LINE

Bars need to be designed to meet all operating conditions. The key is rooted in the concepts of workstations and assembly lines. The core principles utilized for the mass production of automobiles, innovated in 1913 by Henry Ford, are the same. His straight-line assembly line reduced the manufacturing time of a single car from 12 hours to 2.5 hours! In a traditional assembly line (refer to the sketch below), raw materials enter one end, sequentially pass through each workstation and leave as finished goods at the other end. Workers are assigned to one or more workstations. Each workstation contains the equipment and machinery necessary to complete a given task.

PREMIUM AD — DEMO

YOUR BRAND BELONGS HERE

Advertise in Bar Design with Cabaret Design Group. We partner with only a handful of select brands whose products align with serious bar design decision-makers.

Advertise with us →

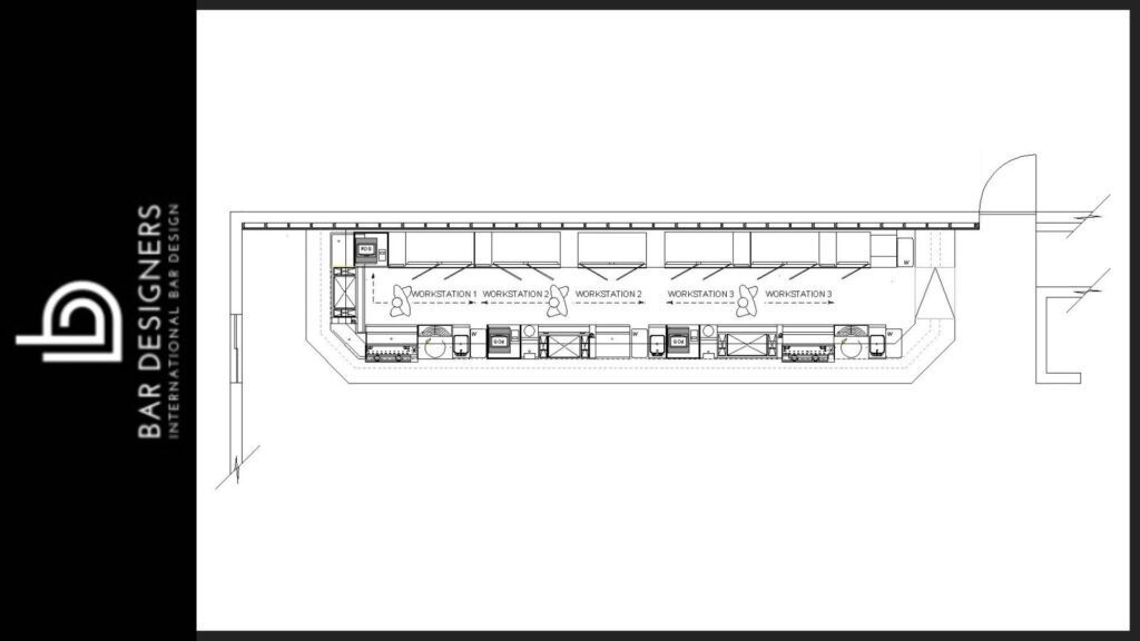
HOW TO APPLY THE ASSEMBLY LINE CONCEPT TO COMMERCIAL BAR DESIGN

Assembly lines maximize labor efficiency in factories. The same principles apply to commercial bars. At Cabaret Design Group, we implement the workstation concept into commercial bar design everyday. In bar design we refer to workstations as bartender stations, and the drink orders each bartender produces become one of many “completed assemblies” within each respective station. Bartender stations are designed with the proper equipment to produce completed drink orders. Depicted in this drawing is a 3-station bar.

DESIGNING AND BUILDING A BETTER BAR BEGINS WITH EFFICIENT LAYOUTS
Sketch depicting traditional straight assembly line
ERGONOMIC WORK ZONES ARE PART OF A BETTER BAR DESIGN
Bar equipment plan with ergonomic work zones
PREMIUM AD — DEMO

YOUR BRAND BELONGS HERE

Advertise in Bar Design with Cabaret Design Group. We partner with only a handful of select brands whose products align with serious bar design decision-makers.

Advertise with us →

OPTIMAL BARTENDER STATIONS

To design and build a better bar, make sure to pay attention to optimize your bartender stations:

  • Limit bartender movements between zero – two (2) steps in any direction.
  • Bartenders should not cross each other’s paths.
  • Stations should be 8’ (2,44m) or less (10′ (3,05m) or less with forward-facing POS station).
  • The bartender’s movements should be primarily from side-to-side.
KROWNE'S TAFFER COMMAND STATION WITH OPTIONS
KROWNE'S NEW TAFFER COMMAND COCKTAIL STATIONS

BAR EQUIPMENT FOR AN EFFICIENT BARTENDER STATION

To achieve maximum work efficiency, each station must have:

  • All of the equipment necessary to create a small bar.
  • Efficiently-designed back bar with access to all beer, wine and top-shelf liquor.
bartender station design mistake causing financial loss for bar owner

If you get bartender station design wrong, it will cost you a fortune. Learn how to avoid losing tens of thousands before your bar is built.Most bartender stations look complete – and confusing, to many.The stainless steel is in place. The ice bins are installed. There’s a sink. A speed rail. Maybe a soda …

Bar startup cost 2025.

The Dream vs. the Price Tag Updated for 2026: Costs, labor availability, and equipment pricing continue to shift. This guide reflects current realities while explaining which fundamentals haven’t changed. Opening a bar is one of the great lifestyle dreams: a place where friends gather, the drinks are flowing, and the energy is electric. But …

TIPS FOR OPERATING AN EFFICIENT BAR

Busy bars utilize barbacks to maximize bartender efficiency, by completing:

  • Keep the ice bins filled.
  • Maintain the glassware levels at each station.
  • Maintain the bar stock levels of beer, wine and liquor.
  • Service the bar trash receptacles.
Photo of Bar Back
Photo of Bar Back

HOW TO DESIGN A BARTENDER STATION

Bartender equipment requirements vary, depending on the percentage of beer, wine and liquor a given venue sells. Pizza restaurants typically sell 60% beer, 20% wine and 20% alcohol. The equipment requirements differ from steak houses, which sell a much higher percentage of liquor and wine. Fine dining restaurants and sports bars have their own unique offerings, based on their business model. For these reasons, the bar equipment needs in each type of venue will vary. From an earlier post, bartender stations often include:

  • Waste receptacle
  • Dump sink
  • Drainboard
  • Soda gun
  • Single speed rail
  • Ice bin
  • Underbar liquor steps
  • POS terminal


Shared items includes 3-bin sinks, glass washers, blender stations and hand sinks.

PHOTO OF TAFFER COMMAND STATION WITH SODA GUN
PHOTO OF TAFFER COMMAND STATION

HOW TO DESIGN AND BUILD A BETTER MULTI-STATION BAR

In multi-station bars,

  • Position glass washers and 3-bin sinks at the beginning of the equipment layout.
  • Back bar coolers, slide-top coolers and hand sinks should be shared.
  • Bars that sell a high level of draft beer need to have quick access to draft beer towers at each workstation.
  • Strategically place shared equipment for equal access to each bartender. A 2-station bar includes two nearly identical stations; place Top-Shelf liquor at the center of the back bar.
  • The quantity of coolers depends on the volume of bottled beer and wine sold.
  • Automatic washers are capable of handling two-to-three stations.
BETTER BAR DESIGN LEADS TO BETTER CUSTOMER SATISFACTION
Sketch Depicting Customer Satisfaction Cycle

EFFICIENT BARS DON’T NEED TO BE TOO LONG

Don’t shoot yourself in the foot with a long bar and one or two bartenders who will wear themselves out trying to keep your customers happy.

To design and build a better bar, efficiently-designed bartender stations equate to better-run bars and happier customers, which will maximize your profits and turn your bar into a cash cow!


BAR DESIGN TIP:

Automatic glass washers far exceed the output of three 3-bin sinks. They save valuable finished bar space, a TON of labor and much cleaner and safer drinks.

Need Help Planning Your restaurant and bar?

From concept to construction, our expert consultants help you plan every step. Book a free discovery call today.
Your Ad Could Be Here on Cabaret Design Group Website
Your Ad Could Be Here on Cabaret Design Group Website
Your Ad Could Be Here on Cabaret Design Group Website
Your Ad Could Be Here on Cabaret Design Group Website

RICK UZUBELL

Rick Uzubell is the founder of Cabaret Design Group and the publisher of the Bar Design Learning Center. He helps bar owners and hospitality teams design bars that work—operationally, financially, and ergonomically—by focusing on layout, equipment planning, and real-world workflow. 👉 Start here: https://cabaretdesigners.com/how-to-design-a-bar/
Scroll To Top

Before You Finalize Your Bar Layout…

Get real-world bar design insights most owners

don’t see—until it’s too late.

👉 Join 1,000+ operators getting straight answers on bar design, layout, and real-world costs.

Sam Winer, audio and video specialist for security-integrated food and beverage consulting

Sam Winer

AV + Security Specialist | President,
WinStar Video Security

Sam Winer leads WinStar Video Security with over 20 years of experience designing and installing advanced surveillance, audio, and communications systems for restaurants, bars, and QSR chains. His firm delivers HD, AI-powered security systems, immersive AV experiences, and cellular signal boosting that meets the demands of modern hospitality venues.

From single-unit lounges to high-volume chains, Sam’s work focuses on guest experience, loss prevention, and operational reliability. He’s known for helping operators select the right systems — then install and maintain them for long-term performance.

Sam is a trusted integrator for projects that require technical precision and rock-solid uptime — whether building from scratch, upgrading legacy systems, or opening at scale.

James Farley, structural engineer supporting food and beverage design for commercial hospitality builds

James Farley, PE, SE

Structural Engineer | Owner,
MC Squared, Inc.

James Farley is a licensed structural engineer with deep experience designing commercial buildings across the U.S. He is the owner and principal at MC Squared, Inc., where he leads structural design for a wide range of mid-rise hospitality, retail, and mixed-use projects.

James specializes in turning complex architectural visions into sound, code-compliant structures. His work spans steel, wood, concrete, and hybrid systems — and he’s known for his speed, clarity, and ability to collaborate closely with design teams to support aesthetics without compromising performance.

Licensed in multiple states, including Washington and Arkansas, James plays a vital role in bar and restaurant projects that demand both technical integrity and visual impact.

Garrett Lennon, foodservice design consultant for healthcare, higher ed, and hospitality projects

Garrett Lennon

Design Consultant | President,
JLR Design Group

Garrett Lennon brings over 20 years of experience across foodservice operations, kitchen design, and consulting. As President and Principal of JLR Design Group, he leads projects in hospitality, healthcare, higher education, and institutional environments — where functionality, compliance, and guest satisfaction must align.

With a background in both management and engineering, Garrett excels at bridging frontline realities with technical performance. His team is known for translating operational needs into layouts that perform day after day, year after year.

Whether supporting a hospital kitchen upgrade, a campus dining overhaul, or a high-volume hospitality venue, Garrett focuses on designs that last — clean, compliant, and centered on the user experience.

Dylan Halaszynski, food hall design expert and compliance-driven food and beverage consultant

Dylan Halaszynski

Food Hall Specialist | Founder,
Bayard FSD

Dylan Halaszynski launched Bayard Food Service Design with a singular goal: to bring sharp technical fluency to the complex world of nontraditional foodservice models. His work focuses on unique formats like food halls, shared prep kitchens, and market-style dining — where code compliance and creative layouts must coexist.

With a background in construction management and boutique consulting, Dylan’s superpower is translating regulatory code into efficient, scalable spaces. He’s worked closely with Departments of Health across multiple U.S. jurisdictions and is known for identifying and solving challenges that would stall less experienced teams.

As an FCSI professional, Dylan pairs technical credibility with a next-gen mindset. He’s a go-to strategist for clients exploring urban revitalization projects, hospitality incubators, and unconventional culinary concepts — helping them move quickly, stay compliant, and stand out.

Kevin Moll, hospitality advisor and multi-unit food and beverage consultant

Kevin Moll

Hospitality Advisor | President,
Restaurant Consulting Services

Kevin Moll is a 39-year hospitality veteran, known for his unmatched insight into startup strategy, turnaround planning, and talent acquisition. As President of Restaurant Consulting Services, Inc. and its sister company Restaurant Recruiting Pros, he delivers full-spectrum solutions — from concept to culture.

His operational experience spans World’s Fair-scale foodservice, multi-unit ownership, and high-performance recruiting. He’s been featured on ABC’s Nightline, authored two books, and founded “Mystery Shoppers,” a global brand trusted by operators worldwide.

Kevin blends street-smart practicality with boardroom-level advisory, making him an invaluable partner to entrepreneurs, executives, and investors alike. Whether launching a new brand or revitalizing an underperforming venue, his work bridges hospitality intuition with data-driven execution — unlocking growth where others see obstacles.

Lu Schildmeyer, restaurant and bar design specialist with deep expertise in foodservice facility consulting

Lu Schildmeyer

FCSI Designer | Founder,
LU S Design Associates

Lu Schildmeyer has shaped more than 2,800 hospitality environments across the U.S. and Canada — including over 700 restaurants and 600 bars. With nearly four decades of experience in foodservice facility design, custom stainless steel millwork, and health code compliance, Lu is a trusted specialist for operators who demand technical precision and operational fluidity.

His work spans every segment of the hospitality industry — from boutique bistros to high-volume entertainment venues — where performance, durability, and code alignment must all coexist. Known for practical layouts and forward-thinking BOH integration, Lu brings peace of mind to architects, developers, and chefs who want their kitchens to run as smoothly as their dining rooms.

As an FCSI member, Lu blends aesthetic coordination with engineer-grade accuracy. His shop drawings are regarded as gold standard in foodservice environments, and his ability to anticipate permitting, clearance, and sanitation requirements has saved clients time, risk, and rework at every stage of the build.

Craig Pendleton, food and beverage consultant with a focus on tribal gaming and high-performance dining operations

Craig Pendleton

F & B Consultant | Founder,
National Foodservice Consulting

With more than 50 years in the food and beverage industry, Craig Pendleton brings unmatched operational insight to every project he touches. From national brands to independent operators, his advisory work is grounded in deep experience and a no-nonsense approach to profitability, workflow, and guest experience.

Over the past three decades, Craig has helped launch more than 100 successful venues — including restaurants, casinos, and specialty dining concepts across the U.S. His consulting engagements focus on marrying smart design with real-world management, often bridging the gap between creative vision and operational execution.

Craig’s expertise is especially valued in Tribal gaming environments, where sovereignty, cultural fluency, and long-term sustainability must align. He approaches these partnerships with respect, precision, and a commitment to self-determination — creating foodservice strategies that support community goals while optimizing guest satisfaction and fiscal results.

Colin Addley, global construction strategist and food and beverage consultant for hospitality development

COLIN ADDLEY, MCIOB

Construction Strategist | Founder,
ADDMORE Services

Colin Addley is a Chartered Builder (MCIOB) with over 40 years of experience leading complex construction projects across six continents. His expertise spans construction management, quantity surveying, and international development strategy — particularly in hospitality, resorts, and commercial spaces.

As the founder of ADDMORE Services, Colin works with a global network of professionals he’s personally vetted — including quantity surveyors, site engineers, project managers, and planners — all of whom operate with the same rigor and high-performance mindset. He’s directed projects in the UK, UAE, South Africa, Germany, and North America, earning a reputation for precise execution on fast-moving, high-stakes initiatives.

Whether it’s developing a new food hall in Johannesburg, overseeing a hospitality rollout in the Gulf States, or helping U.S. brands expand overseas, Colin brings logistical clarity and on-the-ground insight to every venture. His work consistently blends old-school project discipline with contemporary collaboration — making him a powerhouse for any project that spans borders, teams, or time zones.

Rick Uzubell, bar design expert and food and beverage consultant specializing in integrated bar systems

Rick Uzubell

Bar Design Expert | Founder,
Cabaret Design Group

As the creator of Integrated Bar Design, Rick specializes in solving complex spatial and system challenges that fall outside the scope of conventional design disciplines. His work bridges compliance and performance, translating regulatory constraints into highly efficient, service-forward bar environments.

Rick’s signature solutions—curved bar geometries, modular steel systems, and ADA-first layouts—have shaped high-performing venues across the U.S., Canada, and offshore markets. These systems are trusted by operators who demand high-volume throughput without compromising service quality, accessibility, or design integrity.

To support larger and more complex hospitality projects, Rick works alongside a vetted network of strategic partners in commercial foodservice, kitchen planning, and hospitality operations. This collaborative model allows Cabaret Design Group to deliver fully coordinated food-and-beverage environments—where bar and kitchen design are aligned from the earliest planning stages.

A prolific educator and industry voice, Rick has authored over 100 published articles and produced more than 80 instructional YouTube videos on bar design, equipment planning, and operational strategy. Through this work, he has helped thousands of restaurateurs, architects, and consultants rethink not just how bars look—but how they function, scale, and perform in the real world.