HOW TO PLAN COMMERCIAL BAR LAYOUT CLEARANCES

Interior of a commercial bar with island bar and overhead bottle storage, used as the thumbnail for planning commercial bar layouts.

Watch: How to plan commercial bar layout clearances — bartender aisle widths, back bar depth, bar top dimensions and ADA spacing.

🧭 Why Bar Layouts Make or Break Your Space

How are commercial bar layouts planned? You think you have enough space. That empty 1,000-square-foot room feels cavernous—until you start penciling in a bar, a drink rail, seating, and a service aisle. Suddenly, you’re squeezing past imaginary barstools and rethinking your dream layout.

Bar layouts aren’t just about fitting furniture into a room. They’re a calculated balance of functionality, comfort, and code. One misstep and your bar becomes a bottlenecked nightmare, not a high-performance hospitality hub.

Before a single piece of equipment is ordered or a stool is placed, understanding layout clearances is your first line of defense. This guide breaks down the essential dimensions and planning strategies that let your vision flow—literally.

I've got a 1,000 sq ft space to work with. It seems like it should be plenty of space for any bar I design, but the only way to know for sure is to go through the necessary architectural steps of setting the correct standards and clearances. What are the usual clearances I should be considering? How do you plan a commercial bar layout for a 1,000 square foot space to accommodate not only equipment, bartenders, and seating but also proper aisles? Is there a good place to start on how to design an island bar with those considerations in mind?
In a 1,000-square-foot room, how should I plan the bar design, including equipment, staff, and patrons, to meet all relevant architectural standards?
PREMIUM AD — DEMO

YOUR BRAND BELONGS HERE

Advertise in Bar Design with Cabaret Design Group. We partner with only a handful of select brands whose products align with serious bar design decision-makers.

Advertise with us →

📐 What Is a Bar Layout—And Why Does It Matter?

A bar layout is the strategic map of where every component in a bar lives—from the equipment behind the counter to the distance between your back bar and the nearest guest’s elbow. It’s the architectural choreography that determines how your staff moves, how guests interact, and ultimately, how efficiently your bar makes money.

A poor layout leads to chaos: bartenders bumping into each other, servers struggling to navigate crowded aisles, and customers feeling cramped instead of welcomed. These aren’t just comfort issues—they’re revenue leaks.

The right bar layout validates your entire concept before you break ground. Whether you’re building from scratch or reworking a tired setup, starting with a clear layout plan gives you confidence that your space will work in the real world—not just on paper.

A 1,000 square foot space seems like enough space
I've got a 1,000 sq ft space to work with. It seems like it should be plenty of space for any bar I design, but the only way to know for sure is to go through the necessary architectural steps of setting the correct standards and clearances. What are the usual clearances I should be considering?
PREMIUM AD — DEMO

YOUR BRAND BELONGS HERE

Advertise in Bar Design with Cabaret Design Group. We partner with only a handful of select brands whose products align with serious bar design decision-makers.

Advertise with us →

🔎 The Cross-Section Blueprint—Your First Step in Bar Planning

The first step in planning your bar layout isn’t CAD software or 3D renderings—it’s a simple cross-sectional sketch. Think of it as a side view of your bar from floor to ceiling, outlining every key component in the order they’ll exist in space.

Why start here? Because it forces you to visualize the actual clearances required between the back bar, the underbar equipment, the customer side, and all the activity zones in between. No guesswork—just dimensional reality.

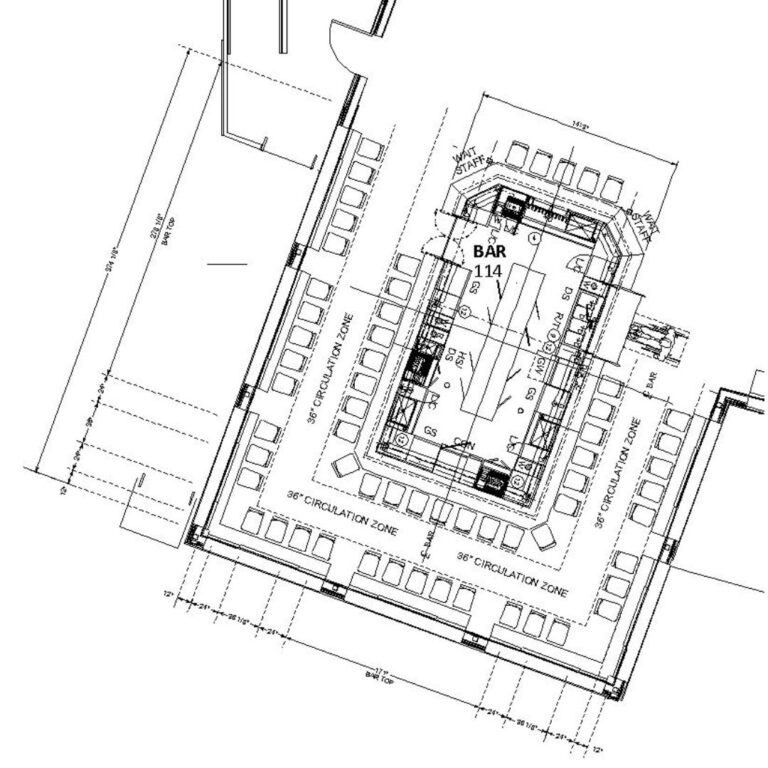
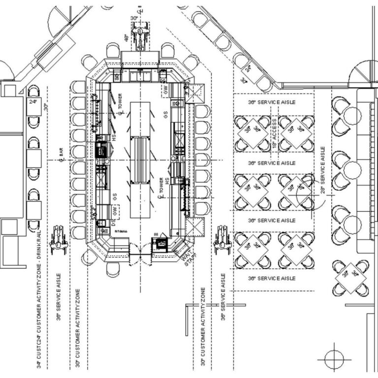
Consider a common scenario: the island bar with drink rail seating on three sides. It sounds luxurious… until you realize that island bars demand generous aisle space on all sides. What felt like a roomy 1,000-square-foot blank canvas starts to look a lot smaller. That’s where your cross-section earns its keep—it helps you flag spatial conflicts before they become construction problems.

A full-room section view of a large room and large island bar
By using the cross-sectional view, we have come to realize that every inch of the room is already filled with the necessary clearances that are essential for proper layout. The full-room cross-section shows that nothing was missed in the design and that the bar has been planned for proper functionality.

📏 Universal Clearance Standards for Commercial Bar Layout

Bar layout begins with non-negotiable clearances—the foundational measurements that ensure guests are comfortable, staff can move freely, and no one ends up contorting their way through a shift.

Here’s a breakdown of the essential dimensions you’ll need to build around (refer to the table below):

  • Back bar depth: 24”–29”
    For shelving, liquor displays, sinks, and storage.

  • Back bar aisle: 31”–37”
    Minimum space required for staff to move behind the bar efficiently.

  • Underbar equipment zone: 24”
    Where refrigeration, ice bins, and cocktail stations live.

  • Bar top depth + overhang: 24”–30” bar top with 11” overhang on the bartender side.
    Gives customers elbow room and ergonomic reach.

  • Seated customer activity zone: 24”
    Space occupied by a guest sitting at the bar.

  • Server/ADA activity zone: 36”
    Essential for compliant access and server movement.

  • Drink rail clearance (for standing/seated guests): 24”
    Just like a bar stool zone—guests need room to breathe.

  • Drink rail width (serving/dining): 10”–12” minimum; 14” for food
    Don’t skimp if you’re serving anything beyond a beer.

💡 Don’t eyeball it—design with tape measure precision. These dimensions are the difference between a smooth shift and a service disaster.

"I need help in designing and building a bar with bar chairs." To help you in your endeavors, I made a simple table that summarizes all the necessary dimensions for creating a bar design. Please let me know if this is helpful or if I can make further contributions to help make your bar design a success.
The table above will assist anyone who may need it to lay out a bar with all of the proper dimensions and clearances. This will help the process go much faster and with fewer mistakes.

STUCK ON YOUR BAR DESIGN? CALL US NOW…

🔁 How to Apply These Standards to Real-World Bar Layouts

Let’s revisit the 1,000-square-foot bar layout mentioned earlier. On paper, that footprint looked ideal. But when the owner asked for a center island bar with seating on three sides, it started to get complicated.

Here’s how the universal clearances helped test the concept:

  • Island bars require multiple 36” service aisles around the perimeter.

  • Each drink rail needs 24” of guest activity zone.

  • Add in underbar depth and customer overhang, and suddenly, the spatial puzzle tightens fast.

By applying clearance standards from the start, it became clear that a full island bar with seating on all sides would overwhelm the space. The solution? Compromise with seating on two sides, use tighter but compliant back bar aisles, and reserve one side for standing patrons or high-top tables.

Pro Tips for Tight Bar Layouts:

  • Use wall-mounted back bars to reclaim aisle space.

  • Swap island bars for L- or U-shaped bars to condense circulation zones.

  • Design multi-use spaces (e.g., a drink rail that doubles as standing bar space).

  • Keep service aisles sacred—don’t sacrifice flow for a few extra seats.
After a bar has been fully specified, even large spaces begin to feel smaller
A plan view of an island bar in a large room, using architectural standards
Bar startup cost 2025.

The Dream vs. the Price Tag Updated for 2026: Costs, labor availability, and equipment pricing continue to shift. This guide reflects current realities while explaining which fundamentals haven’t changed. Opening a bar is one of the great lifestyle dreams: a place where friends gather, the drinks are flowing, and the energy is electric. But …

Thumbnail image showing two budget-friendly bar coolers side by side, used to promote an article on the best cheap bar coolers for bars and restaurants.

Why Bar Coolers Can Make or Break Your Budget When I presented one of my clients with a premium Krowne bar equipment quote, his face turned pale. He feared his entire project was doomed. And I understood why — the bar coolers alone represented 41% of his equipment costs. That’s the silent budget killer …

🚫 Common Mistakes to Avoid in Bar Layout Planning

Even the most beautifully designed bar can fall flat if critical layout decisions are overlooked. Here are the most common missteps that sabotage performance and guest experience:

❌ Overcrowding with stools or drink rails

It’s tempting to cram in as many seats as possible—but every extra stool that blocks an aisle or clutters the customer zone slows service and kills comfort. More isn’t always better.

❌ Ignoring ADA and server movement zones

That 36-inch clearance isn’t a suggestion—it’s the law. Squeezing pathways too tight compromises both compliance and efficiency, especially during peak service hours.

❌ Neglecting underbar equipment spacing

Your bar team needs space to move, shake, scoop, and pour—without playing Tetris with their tools. Cramming ice bins or beer taps too close leads to workflow breakdowns.

❌ Designing without real cross-sectional review

Too many layouts are approved based on floor plans alone. A cross-section reveals vertical and horizontal spacing that can’t be seen from a bird’s-eye view—don’t skip it.

In a 1,000-square-foot room, how should I plan the bar design, including equipment, staff, and patrons, to meet all relevant architectural standards?
The bar layout must depict customer seating and service aisle clearances in strict adherence to architectural standards.

✅ Pro Tips for Functional, Guest-Ready Layouts

Now let’s flip it—here’s what the pros do to make their bar layouts seamless, efficient, and revenue-ready:

🔧 Think like a bartender

Every piece of equipment should be within reach, not a few steps away. Stations should feel like command centers, not obstacle courses.

🌬️ Leave breathing room in service aisles

Don’t cut corners on movement space. A little extra room in the service aisle can be the difference between smooth operations and a service trainwreck on Friday night.

🥂 Match layout to concept

Design flows differently in a sports bar than in a craft cocktail lounge. Align your layout to your service style, guest pacing, and product focus.

🚪 Don’t forget storage and access points

It’s not just what guests see. Back-end functionality—like keg storage, trash access, or back bar replenishment—needs to be mapped and efficient too.

ERGONOMICS IN BAR DESIGN IS BASED ON EFFICIENT BARTENDER MOVEMENT
SECTION VIEW OF UNIVERSAL BAR DIMENSIONS WITH ADA

🔚 Conclusion: The Bottom Line on Bar Layouts

Planning a commercial bar layout isn’t about guesswork—it’s about getting every inch right. The clearances you choose directly impact how your bar looks, feels, and performs.

Use the standards. Sketch the cross-section. Visualize the experience from both sides of the bar.

🔧 Before you break ground, make sure your bar layout clears every hurdle.

➡️ My Favorite Design Reference Source: Human Dimension  & Interior Space

⬇️ 2018_UNIVERSAL_BAR_CLEARANCES_WITH_ADA.pdf

⬇️ BAR_AND_RESTAURANT_SEATING_GUIDELINES.pdf

Example of Variations of bar top sizes

📐 Bonus: How to Calculate the Correct Bar Top Depth

Designing a bar top isn’t just about picking a number—it’s about calculating clearances that deliver both ergonomics and visual balance.

To find the right bar top depth, add up these three elements:

  1. Interior overhang (including drink rail): Always 11″ from the inside face of the bar die. This never changes, no matter the drink rail size—it’s what gives your guests comfortable reach and posture.

  2. Bar die thickness:

    • Use 5″ for traditional stick-built (2×4 framed) bar die.

    • Use 7″–8″ for modular bar die systems.

  3. Exterior overhang (customer side): Typically 6″–8″, depending on design aesthetic and how much elbow room you want to provide

🧮 Example Calculation:

  • 11″ (interior) + 5″ (bar die) + 8″ (exterior) = 24″ bar top depth (minimum).

  • A 26″ top is more common in our bar layouts.

  • For curved or elliptical bars, 30″ depth may be necessary to maintain visual symmetry and guest comfort.

💡 Pro tip: No matter what drink rail depth you choose, the interior overhang remains 11″. It’s all about maintaining reach and posture for both standing and seated patrons.

❓ Frequently Asked Questions About Bar Layouts

  1. What is the ideal aisle width behind a commercial bar?
    For smooth operations and staff comfort, the back bar aisle should be between 31” and 37”. This clearance allows bartenders to move efficiently, especially during peak service times, and is a key part of any functional bar layout.
  2. How much space should I leave for customers seated at the bar?
    You’ll want to allow 24 inches per guest in the customer activity zone. This includes legroom, stool placement, and comfortable spacing at the bar top—critical for both experience and efficiency.
  3. Do I need to include ADA clearances in my bar layout?
    Absolutely. Every bar layout must incorporate at least one 36-inch-wide ADA-compliant activity zone for accessible service. Skipping this step can put you out of code and alienate guests with mobility needs.
  4. How deep should a commercial bar top be?
    The standard depth for a bar top is 24” to 30”, with an 11” overhang on the bartender side. This ensures drinks, food, and elbows stay comfortably in bounds.
  5. What’s the first step in planning a commercial bar layout?
    Start with a cross-sectional sketch. It’s the best way to visualize how all components—equipment, aisles, guest zones—interact in 3D space. This step is often skipped but is essential for a successful bar layout that actually works.

Need Help Planning Your restaurant and bar?

From concept to construction, our expert consultants help you plan every step. Book a free discovery call today.
Your Ad Could Be Here on Cabaret Design Group Website
Posted in
Your Ad Could Be Here on Cabaret Design Group Website
Your Ad Could Be Here on Cabaret Design Group Website
Your Ad Could Be Here on Cabaret Design Group Website

RICK UZUBELL

Rick Uzubell is the founder of Cabaret Design Group and the publisher of the Bar Design Learning Center. He helps bar owners and hospitality teams design bars that work—operationally, financially, and ergonomically—by focusing on layout, equipment planning, and real-world workflow. 👉 Start here: https://cabaretdesigners.com/how-to-design-a-bar/
Scroll To Top
Sam Winer, audio and video specialist for security-integrated food and beverage consulting

Sam Winer

AV + Security Specialist | President,
WinStar Video Security

Sam Winer leads WinStar Video Security with over 20 years of experience designing and installing advanced surveillance, audio, and communications systems for restaurants, bars, and QSR chains. His firm delivers HD, AI-powered security systems, immersive AV experiences, and cellular signal boosting that meets the demands of modern hospitality venues.

From single-unit lounges to high-volume chains, Sam’s work focuses on guest experience, loss prevention, and operational reliability. He’s known for helping operators select the right systems — then install and maintain them for long-term performance.

Sam is a trusted integrator for projects that require technical precision and rock-solid uptime — whether building from scratch, upgrading legacy systems, or opening at scale.

James Farley, structural engineer supporting food and beverage design for commercial hospitality builds

James Farley, PE, SE

Structural Engineer | Owner,
MC Squared, Inc.

James Farley is a licensed structural engineer with deep experience designing commercial buildings across the U.S. He is the owner and principal at MC Squared, Inc., where he leads structural design for a wide range of mid-rise hospitality, retail, and mixed-use projects.

James specializes in turning complex architectural visions into sound, code-compliant structures. His work spans steel, wood, concrete, and hybrid systems — and he’s known for his speed, clarity, and ability to collaborate closely with design teams to support aesthetics without compromising performance.

Licensed in multiple states, including Washington and Arkansas, James plays a vital role in bar and restaurant projects that demand both technical integrity and visual impact.

Garrett Lennon, foodservice design consultant for healthcare, higher ed, and hospitality projects

Garrett Lennon

Design Consultant | President,
JLR Design Group

Garrett Lennon brings over 20 years of experience across foodservice operations, kitchen design, and consulting. As President and Principal of JLR Design Group, he leads projects in hospitality, healthcare, higher education, and institutional environments — where functionality, compliance, and guest satisfaction must align.

With a background in both management and engineering, Garrett excels at bridging frontline realities with technical performance. His team is known for translating operational needs into layouts that perform day after day, year after year.

Whether supporting a hospital kitchen upgrade, a campus dining overhaul, or a high-volume hospitality venue, Garrett focuses on designs that last — clean, compliant, and centered on the user experience.

Dylan Halaszynski, food hall design expert and compliance-driven food and beverage consultant

Dylan Halaszynski

Food Hall Specialist | Founder,
Bayard FSD

Dylan Halaszynski launched Bayard Food Service Design with a singular goal: to bring sharp technical fluency to the complex world of nontraditional foodservice models. His work focuses on unique formats like food halls, shared prep kitchens, and market-style dining — where code compliance and creative layouts must coexist.

With a background in construction management and boutique consulting, Dylan’s superpower is translating regulatory code into efficient, scalable spaces. He’s worked closely with Departments of Health across multiple U.S. jurisdictions and is known for identifying and solving challenges that would stall less experienced teams.

As an FCSI professional, Dylan pairs technical credibility with a next-gen mindset. He’s a go-to strategist for clients exploring urban revitalization projects, hospitality incubators, and unconventional culinary concepts — helping them move quickly, stay compliant, and stand out.

Kevin Moll, hospitality advisor and multi-unit food and beverage consultant

Kevin Moll

Hospitality Advisor | President,
Restaurant Consulting Services

Kevin Moll is a 39-year hospitality veteran, known for his unmatched insight into startup strategy, turnaround planning, and talent acquisition. As President of Restaurant Consulting Services, Inc. and its sister company Restaurant Recruiting Pros, he delivers full-spectrum solutions — from concept to culture.

His operational experience spans World’s Fair-scale foodservice, multi-unit ownership, and high-performance recruiting. He’s been featured on ABC’s Nightline, authored two books, and founded “Mystery Shoppers,” a global brand trusted by operators worldwide.

Kevin blends street-smart practicality with boardroom-level advisory, making him an invaluable partner to entrepreneurs, executives, and investors alike. Whether launching a new brand or revitalizing an underperforming venue, his work bridges hospitality intuition with data-driven execution — unlocking growth where others see obstacles.

Lu Schildmeyer, restaurant and bar design specialist with deep expertise in foodservice facility consulting

Lu Schildmeyer

FCSI Designer | Founder,
LU S Design Associates

Lu Schildmeyer has shaped more than 2,800 hospitality environments across the U.S. and Canada — including over 700 restaurants and 600 bars. With nearly four decades of experience in foodservice facility design, custom stainless steel millwork, and health code compliance, Lu is a trusted specialist for operators who demand technical precision and operational fluidity.

His work spans every segment of the hospitality industry — from boutique bistros to high-volume entertainment venues — where performance, durability, and code alignment must all coexist. Known for practical layouts and forward-thinking BOH integration, Lu brings peace of mind to architects, developers, and chefs who want their kitchens to run as smoothly as their dining rooms.

As an FCSI member, Lu blends aesthetic coordination with engineer-grade accuracy. His shop drawings are regarded as gold standard in foodservice environments, and his ability to anticipate permitting, clearance, and sanitation requirements has saved clients time, risk, and rework at every stage of the build.

Craig Pendleton, food and beverage consultant with a focus on tribal gaming and high-performance dining operations

Craig Pendleton

F & B Consultant | Founder,
National Foodservice Consulting

With more than 50 years in the food and beverage industry, Craig Pendleton brings unmatched operational insight to every project he touches. From national brands to independent operators, his advisory work is grounded in deep experience and a no-nonsense approach to profitability, workflow, and guest experience.

Over the past three decades, Craig has helped launch more than 100 successful venues — including restaurants, casinos, and specialty dining concepts across the U.S. His consulting engagements focus on marrying smart design with real-world management, often bridging the gap between creative vision and operational execution.

Craig’s expertise is especially valued in Tribal gaming environments, where sovereignty, cultural fluency, and long-term sustainability must align. He approaches these partnerships with respect, precision, and a commitment to self-determination — creating foodservice strategies that support community goals while optimizing guest satisfaction and fiscal results.

Colin Addley, global construction strategist and food and beverage consultant for hospitality development

COLIN ADDLEY, MCIOB

Construction Strategist | Founder,
ADDMORE Services

Colin Addley is a Chartered Builder (MCIOB) with over 40 years of experience leading complex construction projects across six continents. His expertise spans construction management, quantity surveying, and international development strategy — particularly in hospitality, resorts, and commercial spaces.

As the founder of ADDMORE Services, Colin works with a global network of professionals he’s personally vetted — including quantity surveyors, site engineers, project managers, and planners — all of whom operate with the same rigor and high-performance mindset. He’s directed projects in the UK, UAE, South Africa, Germany, and North America, earning a reputation for precise execution on fast-moving, high-stakes initiatives.

Whether it’s developing a new food hall in Johannesburg, overseeing a hospitality rollout in the Gulf States, or helping U.S. brands expand overseas, Colin brings logistical clarity and on-the-ground insight to every venture. His work consistently blends old-school project discipline with contemporary collaboration — making him a powerhouse for any project that spans borders, teams, or time zones.

Rick Uzubell, bar design expert and food and beverage consultant specializing in integrated bar systems

Rick Uzubell

Bar Design Expert | Founder,
Cabaret Design Group

As the creator of Integrated Bar Design, Rick specializes in solving complex spatial and system challenges that fall outside the scope of conventional design disciplines. His work bridges compliance and performance, translating regulatory constraints into highly efficient, service-forward bar environments.

Rick’s signature solutions—curved bar geometries, modular steel systems, and ADA-first layouts—have shaped high-performing venues across the U.S., Canada, and offshore markets. These systems are trusted by operators who demand high-volume throughput without compromising service quality, accessibility, or design integrity.

To support larger and more complex hospitality projects, Rick works alongside a vetted network of strategic partners in commercial foodservice, kitchen planning, and hospitality operations. This collaborative model allows Cabaret Design Group to deliver fully coordinated food-and-beverage environments—where bar and kitchen design are aligned from the earliest planning stages.

A prolific educator and industry voice, Rick has authored over 100 published articles and produced more than 80 instructional YouTube videos on bar design, equipment planning, and operational strategy. Through this work, he has helped thousands of restaurateurs, architects, and consultants rethink not just how bars look—but how they function, scale, and perform in the real world.