Planning a Restaurant Bar – How Much Space Do You Need?

Wireframe architectural drawing of a restaurant bar layout with seating and service areas, used as the thumbnail for sizing a restaurant bar.

How to size a restaurant bar — calculating bar length, stool spacing, bartender work zones and circulation requirements for efficient restaurant bar layouts.

When planning a restaurant bar, how large should it be? Discover the secrets of bar planning and how to calculate the area you’ll need.

HOW MUCH SPACE DO YOU NEED FOR PLANNING A RESTAURANT BAR?

The following is the interpretation and opinion of Rick Uzubell and covers overlapping requirements of building codes, standards and regulations and is only a general guideline. Consult your local architect for exact information.

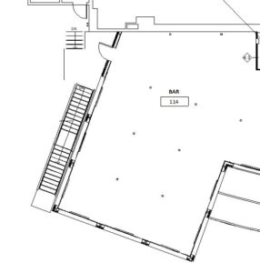
When you look at prospective commercial buildings, do they appear abstract? If you’re in the market for a restaurant/bar and don’t know how to select a prospective building to match a given occupancy, you’ve come to the right place! Referring to the sketch at right, let’s again use this 4,700 sq.ft. restaurant/sports bar, which we determined to have an occupancy load of 157, as calculated by the guidelines stipulated in the International Building Code (“IBC”).

 

BAR DESIGN TIP:

 

The local fire marshal makes the final determination of stated occupant loads.

Architectural drawing of restaurant / sports bar with an occupancy of 157
ARCHITECTURAL PLAN OF RESTAURANT / SPORTS BAR
PREMIUM AD — DEMO

YOUR BRAND BELONGS HERE

Advertise in Bar Design with Cabaret Design Group. We partner with only a handful of select brands whose products align with serious bar design decision-makers.

Advertise with us →

HOW MUCH SPACE DO YOU NEED FOR PLANNING A RESTAURANT BAR?

The following is the interpretation and opinion of Rick Uzubell and covers overlapping requirements of building codes, standards and regulations and is only a general guideline. Consult your local architect for exact information.

When you look at prospective commercial buildings, do they appear abstract? If you’re in the market for a restaurant/bar and don’t know how to select a prospective building to match a given occupancy, you’ve come to the right place! Referring to the sketch at right, let’s again use this 4,700 sq.ft. restaurant/sports bar, which we determined to have an occupancy load of 157, as calculated by the guidelines stipulated in the International Building Code (“IBC”).

 

BAR DESIGN TIP:

 

The local fire marshal makes the final determination of stated occupant loads.

Architectural drawing of restaurant / sports bar with an occupancy of 157
ARCHITECTURAL PLAN OF RESTAURANT / SPORTS BAR

PLANNING BUILDINGS FOR PROSPECTIVE RESTAURANT/BARS

When planning new restaurant bars, the facts most hospitality experts agree on are:

  • Back-of-the-house generally accounts for 30 – 40% of the total building area.
  • 60 – 70% of a given building’s space is designated as front-of-the-house, which is the area intended for customers. The 10% variance is normally the result of the complexity of the menu.
  • Sports bars tend to require less kitchen space, whereas fine dining requires more. Also note in this example that the bar and bar dining areas account for nearly 43% of the front-of-the-house area as well as 60% of the total occupant load. Conversely, the non-bar dining accounts for 27% of the front-of-the-house area and 40% of the occupant load. The remaining front-of-the-house space (30%) is dedicated to common areas, as shown in the following tables:
Table 1. Front-Of-The-House Occupancy Analysis
Room Area % of Total
Bar Area    
·Bar (seated) 29 18.5
· Bar Dining 65 41.4
Sub-Total 94 59.9
Non-Bar Areas    
·Reception 06 3.8
·Dining Room 45 28.7
·VIP Room 12 7.6
Sub-Total 63 40.1
Total 157 100.0
Table 2. Front-Of-The-House Area Analysis
Room Area % of Total
Bar Dining    
·Bar (seated) 410 12.7
Bar (tables) 983 30.4
Sub-Total 1,393 43.1
·Non-Bar Dining    
·Dining Room 681 21.0
·VIP Room 183 5.7
Sub-Total 864 26.7
Common Areas    
·Reception 106 3.3
·Men’s Restroom 140 4.3
·Women’s Restroom 146 4.5
·Hallways 423 13.1
·Vestibule 164 5.0
Sub-Total 979 30.2
Total 3,236 100.0

SAMPLE CALCULATION FOR PLANNING A RESTAURANT BAR

What if you’re planning a restaurant bar with an occupancy load of 100 – how large would your building need to be? The above information will serve as a good template for establishing an approximate building size, but given the variation of kitchen sizes, let’s first focus on how the front-of-the-house space can be predicted. If the above 3,236 sq.ft. front-of-the-house space yields an occupancy of 157, we could predict that an occupancy of 100 would require approximately 2,061 sq.ft. for the front-of-the-house according to the following calculations: 

  • 3,236 sq.ft./157 occupants = 20.6 sq.ft./occupant
  • 100 occupants x 20.6 sq.ft./occupant – 2,060 sq.ft.

The overall size of the facility, with 30% of the overall space dedicated to the back-of-the-house can be calculated as follows:

  • 2,060 sq.ft./.7 = 2,944 sq.ft.

The back-of-the-house requirements can be calculated as follows: 

  • 2,944 sq.ft. – 2,060 sq.ft. = 884 sq.ft. 

So, in round numbers, a 3,000 sq.ft. restaurant/bar would be broken down into 900 sq.ft. for back-of-the-house and 2,100 sq.ft. for front-of-the-house. 

DESIGNING TO YOUR CUSTOMERS

The next decision will be the breakdown of the dining seating. In our example, about 1/3 of the overall occupancy is dedicated to dining seating and 2/3 to the bar area. This model is built on the success of the bar and that makes a lot of sense, because the activity of the dining patrons tends to taper-off several hours before closing. Secondly, the dining room is more family-friendly and therefore we want to earmark enough capacity. Planning a restaurant bar with an occupancy of 100 should probably have 40% of its capacity dedicated to dining tables; ten booths would be a solid approach. The remaining 60 patrons could be split between the island bar and adjacent 4-top tables and booths.

QUESTION:

Have you heard about Jon Taffer’s invention? READ HERE about Jon’s world-class Zero-Step “Taffer Command Station” by Krowne. 

JON TAFFER ENDORSEMENT
PREMIUM AD — DEMO

YOUR BRAND BELONGS HERE

Advertise in Bar Design with Cabaret Design Group. We partner with only a handful of select brands whose products align with serious bar design decision-makers.

Advertise with us →

STUCK ON YOUR BAR DESIGN? CALL US NOW…

WHY PLANNING OPEN SPACE IS SO TRICKY

Planning open space is very deceiving, so a person needs to beware when considering a bar for an open area. Unobstructed sight lines – particularly when accompanied by windows and high ceilings – often lead to misunderstanding the true space. I recall the difficulty a new client was having several years ago when trying to plan an island bar. A new addition was being completed at the time and what initially appeared to be an easy design project ended up being a tight fit! The subject space was 1,000 square feet with roll-up garage doors on three sides, as shown in the plan below.

 

Architectural plan of a large open space for an island bar
A 1,000 SQ.FT. SPACE FOR AN ISLAND BAR

Bars need to be designed from the inside-out. In spite of the large space we had to deal with, it wasn’t obvious to me whether or not an island bar would fit. One of critical design features was to provide a perimeter drink rail with seating. After all, with a river in the backdrop, roll-up doors and perimeter seating was a must. Therefore, I resorted to drawing the bar and seating in section view so I could feel comfortable moving forward with the full design. As shown in the photo below, the section view revealed that we had just enough room to fit the bar!

 

A section view of an island bar depicts how bars are designed from the inside-out
THIS SECTION VIEW DEPICTS WHY BARS NEED TO BE DESIGNED FROM THE INSIDE-OUT

Here’s a short video that discusses the planning of an island bar:

 

NEW CHANGES TO THE IBC FOR OCCUPANCY A-2

The building code is constantly evolving. According to my good friend, architect Tom Kuhn of CSK Architects:

DESIGN TIP:

As of 2018, IBC now requires businesses in Occupancy A-2 that serve alcohol, any new or existing modified fire area over 1500 sq.ft. are now required to have sprinklers if you wanted to meet current code without implementing work-around design parameters in Chapter 34. Always consult your local architect.

I want to thank our good friends at Bullpen Luxury Sports Bar and Gelsosomo’s Pizza for their courtesy. A great place to hang-out, have pizza and watch the game.

TODAY’S TAKEAWAY:

Restaurants with bars don’t require large waiting areas, as many patrons enjoy waiting at the bar.

Need Help Planning Your restaurant and bar?

From concept to construction, our expert consultants help you plan every step. Book a free discovery call today.
Your Ad Could Be Here on Cabaret Design Group Website
Your Ad Could Be Here on Cabaret Design Group Website
Your Ad Could Be Here on Cabaret Design Group Website
Your Ad Could Be Here on Cabaret Design Group Website

RICK UZUBELL

Rick Uzubell is the founder of Cabaret Design Group and the publisher of the Bar Design Learning Center. He helps bar owners and hospitality teams design bars that work—operationally, financially, and ergonomically—by focusing on layout, equipment planning, and real-world workflow. 👉 Start here: https://cabaretdesigners.com/how-to-design-a-bar/
Scroll To Top

Before You Finalize Your Bar Layout…

Get real-world bar design insights most owners

don’t see—until it’s too late.

👉 Join 1,000+ operators getting straight answers on bar design, layout, and real-world costs.

Sam Winer, audio and video specialist for security-integrated food and beverage consulting

Sam Winer

AV + Security Specialist | President,
WinStar Video Security

Sam Winer leads WinStar Video Security with over 20 years of experience designing and installing advanced surveillance, audio, and communications systems for restaurants, bars, and QSR chains. His firm delivers HD, AI-powered security systems, immersive AV experiences, and cellular signal boosting that meets the demands of modern hospitality venues.

From single-unit lounges to high-volume chains, Sam’s work focuses on guest experience, loss prevention, and operational reliability. He’s known for helping operators select the right systems — then install and maintain them for long-term performance.

Sam is a trusted integrator for projects that require technical precision and rock-solid uptime — whether building from scratch, upgrading legacy systems, or opening at scale.

James Farley, structural engineer supporting food and beverage design for commercial hospitality builds

James Farley, PE, SE

Structural Engineer | Owner,
MC Squared, Inc.

James Farley is a licensed structural engineer with deep experience designing commercial buildings across the U.S. He is the owner and principal at MC Squared, Inc., where he leads structural design for a wide range of mid-rise hospitality, retail, and mixed-use projects.

James specializes in turning complex architectural visions into sound, code-compliant structures. His work spans steel, wood, concrete, and hybrid systems — and he’s known for his speed, clarity, and ability to collaborate closely with design teams to support aesthetics without compromising performance.

Licensed in multiple states, including Washington and Arkansas, James plays a vital role in bar and restaurant projects that demand both technical integrity and visual impact.

Garrett Lennon, foodservice design consultant for healthcare, higher ed, and hospitality projects

Garrett Lennon

Design Consultant | President,
JLR Design Group

Garrett Lennon brings over 20 years of experience across foodservice operations, kitchen design, and consulting. As President and Principal of JLR Design Group, he leads projects in hospitality, healthcare, higher education, and institutional environments — where functionality, compliance, and guest satisfaction must align.

With a background in both management and engineering, Garrett excels at bridging frontline realities with technical performance. His team is known for translating operational needs into layouts that perform day after day, year after year.

Whether supporting a hospital kitchen upgrade, a campus dining overhaul, or a high-volume hospitality venue, Garrett focuses on designs that last — clean, compliant, and centered on the user experience.

Dylan Halaszynski, food hall design expert and compliance-driven food and beverage consultant

Dylan Halaszynski

Food Hall Specialist | Founder,
Bayard FSD

Dylan Halaszynski launched Bayard Food Service Design with a singular goal: to bring sharp technical fluency to the complex world of nontraditional foodservice models. His work focuses on unique formats like food halls, shared prep kitchens, and market-style dining — where code compliance and creative layouts must coexist.

With a background in construction management and boutique consulting, Dylan’s superpower is translating regulatory code into efficient, scalable spaces. He’s worked closely with Departments of Health across multiple U.S. jurisdictions and is known for identifying and solving challenges that would stall less experienced teams.

As an FCSI professional, Dylan pairs technical credibility with a next-gen mindset. He’s a go-to strategist for clients exploring urban revitalization projects, hospitality incubators, and unconventional culinary concepts — helping them move quickly, stay compliant, and stand out.

Kevin Moll, hospitality advisor and multi-unit food and beverage consultant

Kevin Moll

Hospitality Advisor | President,
Restaurant Consulting Services

Kevin Moll is a 39-year hospitality veteran, known for his unmatched insight into startup strategy, turnaround planning, and talent acquisition. As President of Restaurant Consulting Services, Inc. and its sister company Restaurant Recruiting Pros, he delivers full-spectrum solutions — from concept to culture.

His operational experience spans World’s Fair-scale foodservice, multi-unit ownership, and high-performance recruiting. He’s been featured on ABC’s Nightline, authored two books, and founded “Mystery Shoppers,” a global brand trusted by operators worldwide.

Kevin blends street-smart practicality with boardroom-level advisory, making him an invaluable partner to entrepreneurs, executives, and investors alike. Whether launching a new brand or revitalizing an underperforming venue, his work bridges hospitality intuition with data-driven execution — unlocking growth where others see obstacles.

Lu Schildmeyer, restaurant and bar design specialist with deep expertise in foodservice facility consulting

Lu Schildmeyer

FCSI Designer | Founder,
LU S Design Associates

Lu Schildmeyer has shaped more than 2,800 hospitality environments across the U.S. and Canada — including over 700 restaurants and 600 bars. With nearly four decades of experience in foodservice facility design, custom stainless steel millwork, and health code compliance, Lu is a trusted specialist for operators who demand technical precision and operational fluidity.

His work spans every segment of the hospitality industry — from boutique bistros to high-volume entertainment venues — where performance, durability, and code alignment must all coexist. Known for practical layouts and forward-thinking BOH integration, Lu brings peace of mind to architects, developers, and chefs who want their kitchens to run as smoothly as their dining rooms.

As an FCSI member, Lu blends aesthetic coordination with engineer-grade accuracy. His shop drawings are regarded as gold standard in foodservice environments, and his ability to anticipate permitting, clearance, and sanitation requirements has saved clients time, risk, and rework at every stage of the build.

Craig Pendleton, food and beverage consultant with a focus on tribal gaming and high-performance dining operations

Craig Pendleton

F & B Consultant | Founder,
National Foodservice Consulting

With more than 50 years in the food and beverage industry, Craig Pendleton brings unmatched operational insight to every project he touches. From national brands to independent operators, his advisory work is grounded in deep experience and a no-nonsense approach to profitability, workflow, and guest experience.

Over the past three decades, Craig has helped launch more than 100 successful venues — including restaurants, casinos, and specialty dining concepts across the U.S. His consulting engagements focus on marrying smart design with real-world management, often bridging the gap between creative vision and operational execution.

Craig’s expertise is especially valued in Tribal gaming environments, where sovereignty, cultural fluency, and long-term sustainability must align. He approaches these partnerships with respect, precision, and a commitment to self-determination — creating foodservice strategies that support community goals while optimizing guest satisfaction and fiscal results.

Colin Addley, global construction strategist and food and beverage consultant for hospitality development

COLIN ADDLEY, MCIOB

Construction Strategist | Founder,
ADDMORE Services

Colin Addley is a Chartered Builder (MCIOB) with over 40 years of experience leading complex construction projects across six continents. His expertise spans construction management, quantity surveying, and international development strategy — particularly in hospitality, resorts, and commercial spaces.

As the founder of ADDMORE Services, Colin works with a global network of professionals he’s personally vetted — including quantity surveyors, site engineers, project managers, and planners — all of whom operate with the same rigor and high-performance mindset. He’s directed projects in the UK, UAE, South Africa, Germany, and North America, earning a reputation for precise execution on fast-moving, high-stakes initiatives.

Whether it’s developing a new food hall in Johannesburg, overseeing a hospitality rollout in the Gulf States, or helping U.S. brands expand overseas, Colin brings logistical clarity and on-the-ground insight to every venture. His work consistently blends old-school project discipline with contemporary collaboration — making him a powerhouse for any project that spans borders, teams, or time zones.

Rick Uzubell, bar design expert and food and beverage consultant specializing in integrated bar systems

Rick Uzubell

Bar Design Expert | Founder,
Cabaret Design Group

As the creator of Integrated Bar Design, Rick specializes in solving complex spatial and system challenges that fall outside the scope of conventional design disciplines. His work bridges compliance and performance, translating regulatory constraints into highly efficient, service-forward bar environments.

Rick’s signature solutions—curved bar geometries, modular steel systems, and ADA-first layouts—have shaped high-performing venues across the U.S., Canada, and offshore markets. These systems are trusted by operators who demand high-volume throughput without compromising service quality, accessibility, or design integrity.

To support larger and more complex hospitality projects, Rick works alongside a vetted network of strategic partners in commercial foodservice, kitchen planning, and hospitality operations. This collaborative model allows Cabaret Design Group to deliver fully coordinated food-and-beverage environments—where bar and kitchen design are aligned from the earliest planning stages.

A prolific educator and industry voice, Rick has authored over 100 published articles and produced more than 80 instructional YouTube videos on bar design, equipment planning, and operational strategy. Through this work, he has helped thousands of restaurateurs, architects, and consultants rethink not just how bars look—but how they function, scale, and perform in the real world.