Bar Design – Calculate Occupancy for Maximum Load

Thumbnail showing a bar floor plan layout with seating and circulation paths, used for a video about calculating maximum bar occupancy.

How to calculate maximum bar occupancy using floor-area factors, seating layout, pathways and code requirements.

How do you calculate the IBC maximum occupancy load in commercial bar design? Discover how factors such as floor area allowances and seating types affect building occupancy.

IBC: CALCULATED OCCUPANCY LOADS FOR BARS

This article covers overlapping requirements of building codes, standards and regulations and is only a general guideline. It is the interpretation and opinion of Rick Uzubell. Consult your local architect for exact information.

HOW THE BUILDING CODE WORKS WHEN CALCULATING BAR OCCUPANCY

In this article I’m going to discuss how to calculate occupancy loads in bar design. For those who are unaware, the stated occupancy for all buildings is a combination of the building code and fire codes. The International Building Code (IBC) is a solid point of reference, but can be superseded by local building codes. IBC is regarded as the minimum acceptable standard. The local fire marshal has the final stamp of approval of stated occupancies. For this discussion the building of interest will be a 4,700 sq.ft., non-sprinkled one-story restaurant/bar and the IBC is what I’ll be referencing.

Bar design how to calculate maximum occupancy

IMAGE OF OCCUPANCY CALCULATION BY AREA
Always consult your local architect

PREMIUM AD — DEMO

YOUR BRAND BELONGS HERE

Advertise in Bar Design with Cabaret Design Group. We partner with only a handful of select brands whose products align with serious bar design decision-makers.

Advertise with us →
Bar startup cost 2025.

The Dream vs. the Price Tag Updated for 2026: Costs, labor availability, and equipment pricing continue to shift. This guide reflects current realities while explaining which fundamentals haven’t changed. Opening a bar is one of the great lifestyle dreams: a place where friends gather, the drinks are flowing, and the energy is electric. But …

Thumbnail image showing two budget-friendly bar coolers side by side, used to promote an article on the best cheap bar coolers for bars and restaurants.

Why Bar Coolers Can Make or Break Your Budget When I presented one of my clients with a premium Krowne bar equipment quote, his face turned pale. He feared his entire project was doomed. And I understood why — the bar coolers alone represented 41% of his equipment costs. That’s the silent budget killer …

Restaurant and bar planning is our specialty

MEET THE EXPERTS BEHIND OUR SIGNATURE PROJECTS

Our flexible collective of F&B consultants brings deep specialization in bar design, kitchen planning, guest experience, and hospitality strategy. Whether it’s a boutique hotel or a national chain, we assemble elite teams to deliver world-class outcomes.

Meet the Team →

PREMIUM AD — DEMO

YOUR BRAND BELONGS HERE

Advertise in Bar Design with Cabaret Design Group. We partner with only a handful of select brands whose products align with serious bar design decision-makers.

Advertise with us →

STUCK ON YOUR BAR DESIGN? CALL US NOW…

OCCUPANCY LOAD AND EGRESS

As defined by the IBC, restaurants and bars fall under the use and classification of ‘Assembly Group A-2’. The most basic governing limitation to calculate occupancy in bar design is the quantity of egresses (known as exits). Fire safety is at the core of all building codes and egress is the first criteria we address. The following is an excerpt from 2018 IBC:

Occupant Load Exits
0-49 1
50-500 2
501-1,000 3
More than 1,000 4

FLOOR AREA ALLOWANCES

The general guidelines for floor area allowances per occupant for A-2 occupancy is as follows:

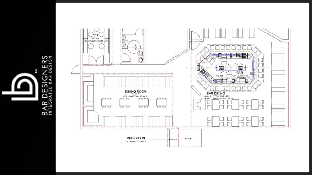
To calculate occupancy in bar design, we do not use one calculation for the entire building. We need to apply the occupancy rules for each of the various areas to attain accurate calculations.

Consider the 4,700 sq.ft., one-story, non-sprinkled sports bar-restaurant shown above

  • The Reception area is a 30 sq.ft. space in the vestibule. IBC allows us to factor 5 sq.ft. per patron, as this is standing space; this yields a total occupancy of 6 (we would only be allowed 7 sq.ft. per patron if this were chairs-only). 
  • For the Bar, we cannot include the area inside the bar in our calculation – only the number of seats around the perimeter, which is 29. 
  • To calculate the occupancy for Bar Dining, we must deduct the area of the bar, which is 410 sq.ft. This leaves us a net calculation of 983 sq.ft. According to IBC, for areas with tables and chairs we need to allocate 15 sq.ft. per patron in this area. This yields an occupancy of 65.
  • The fourth area of this facility is the Dining Room. Again, we can only use the net area, which is 681 sq.ft. Fixed seating requires the occupancy for the Dining Room is 45.
  • The VIP Room, which is 183 sq.ft. and has tables and sofas. We again apply 15 sq.ft. per patron for a total of 12.

OCCUPANCY CALCULATION

If the Dining Room were a dance floor, IBC would allow 5 sq.ft. per patron. This equates to an occupant load of 136 in that area. If the owner wished to operate the Dining Room space as a dance floor on weekends. However, the local fire official may only grant the most-restrictive occupancy of 45.

In fine dining, many owners would likely create a more comfortable open space by allocating 18-20 sq.ft. per patron. This would reduce the occupant load to 34-37.

Back to the example at-hand. To calculate the total occupancy of the bar-restaurant in this example, we simply add each area, as shown in Table 2:

TABLE 2. OCCUPANCY CALCULATION

Area Occupancy
Reception 06
Bar (bar seats) 29
Bar Dining (adjacent seating) 65
Dining Room 45
VIP Room 12
TOTAL 157

HOW IBC CALCULATES EXIT REQUIREMENTS

With a calculated occupant load of 157 for the subject bar/restaurant, this building is required to have two exits.

  • IBC prohibits egress through kitchens, store rooms, closets or through rooms that can be locked to prevent egress.
  • The aggregate clear egress width requirements (referred to as “exit inches”), must be met. “Bottlenecking” will be eliminated under emergency exit conditions.
  • By code, we need to factor .2” of doorway width and .3” of stairway width per patron for buildings without a sprinkler system. In this scenario, this means that we’ll need a total of 31.4” (rounded up to 32”) of total egress (16” per door).
  • Because commercial doors have a minimum width of 32”, we’re within the acceptable range.

THE BUILDING CODE IS CONSTANTLY EVOLVING

According to my good friend, architect Tom Kuhn of CSK Architects, as of 2018, IBC has changed its occupancy requirements. For businesses in Occupancy A-2 that serve alcohol, any new or existing modified fire area over 1500 sq.ft. are required to have sprinklers. If you want to meet current code without implementing sprinklers there are some potential work-around design parameters in Chapter 34. Always consult your local architect.

IS THE CALCULATED OCCUPANCY LOAD THE FINAL DETERMINATION FOR A GIVEN BAR?

Final stated occupancy is the decision of the local fire marshal.

My favorite reference book for architectural standards:
https://amzn.to/38q3piJ

 

POPULAR DOWNLOADS:

UNIVERSAL_BAR_CLEARANCES_WITH_ADA.pdf

ADA GUIDE FOR SMALL BUSINESSES

BAR_AND_RESTAURANT_SEATING_GUIDELINES.pdf

Need Help Planning Your restaurant and bar?

From concept to construction, our expert consultants help you plan every step. Book a free discovery call today.
Your Ad Could Be Here on Cabaret Design Group Website
Posted in
Your Ad Could Be Here on Cabaret Design Group Website
Your Ad Could Be Here on Cabaret Design Group Website
Your Ad Could Be Here on Cabaret Design Group Website

RICK UZUBELL

Rick Uzubell is the founder of Cabaret Design Group and the publisher of the Bar Design Learning Center. He helps bar owners and hospitality teams design bars that work—operationally, financially, and ergonomically—by focusing on layout, equipment planning, and real-world workflow. 👉 Start here: https://cabaretdesigners.com/how-to-design-a-bar/
Scroll To Top
Sam Winer, audio and video specialist for security-integrated food and beverage consulting

Sam Winer

AV + Security Specialist | President,
WinStar Video Security

Sam Winer leads WinStar Video Security with over 20 years of experience designing and installing advanced surveillance, audio, and communications systems for restaurants, bars, and QSR chains. His firm delivers HD, AI-powered security systems, immersive AV experiences, and cellular signal boosting that meets the demands of modern hospitality venues.

From single-unit lounges to high-volume chains, Sam’s work focuses on guest experience, loss prevention, and operational reliability. He’s known for helping operators select the right systems — then install and maintain them for long-term performance.

Sam is a trusted integrator for projects that require technical precision and rock-solid uptime — whether building from scratch, upgrading legacy systems, or opening at scale.

James Farley, structural engineer supporting food and beverage design for commercial hospitality builds

James Farley, PE, SE

Structural Engineer | Owner,
MC Squared, Inc.

James Farley is a licensed structural engineer with deep experience designing commercial buildings across the U.S. He is the owner and principal at MC Squared, Inc., where he leads structural design for a wide range of mid-rise hospitality, retail, and mixed-use projects.

James specializes in turning complex architectural visions into sound, code-compliant structures. His work spans steel, wood, concrete, and hybrid systems — and he’s known for his speed, clarity, and ability to collaborate closely with design teams to support aesthetics without compromising performance.

Licensed in multiple states, including Washington and Arkansas, James plays a vital role in bar and restaurant projects that demand both technical integrity and visual impact.

Garrett Lennon, foodservice design consultant for healthcare, higher ed, and hospitality projects

Garrett Lennon

Design Consultant | President,
JLR Design Group

Garrett Lennon brings over 20 years of experience across foodservice operations, kitchen design, and consulting. As President and Principal of JLR Design Group, he leads projects in hospitality, healthcare, higher education, and institutional environments — where functionality, compliance, and guest satisfaction must align.

With a background in both management and engineering, Garrett excels at bridging frontline realities with technical performance. His team is known for translating operational needs into layouts that perform day after day, year after year.

Whether supporting a hospital kitchen upgrade, a campus dining overhaul, or a high-volume hospitality venue, Garrett focuses on designs that last — clean, compliant, and centered on the user experience.

Dylan Halaszynski, food hall design expert and compliance-driven food and beverage consultant

Dylan Halaszynski

Food Hall Specialist | Founder,
Bayard FSD

Dylan Halaszynski launched Bayard Food Service Design with a singular goal: to bring sharp technical fluency to the complex world of nontraditional foodservice models. His work focuses on unique formats like food halls, shared prep kitchens, and market-style dining — where code compliance and creative layouts must coexist.

With a background in construction management and boutique consulting, Dylan’s superpower is translating regulatory code into efficient, scalable spaces. He’s worked closely with Departments of Health across multiple U.S. jurisdictions and is known for identifying and solving challenges that would stall less experienced teams.

As an FCSI professional, Dylan pairs technical credibility with a next-gen mindset. He’s a go-to strategist for clients exploring urban revitalization projects, hospitality incubators, and unconventional culinary concepts — helping them move quickly, stay compliant, and stand out.

Kevin Moll, hospitality advisor and multi-unit food and beverage consultant

Kevin Moll

Hospitality Advisor | President,
Restaurant Consulting Services

Kevin Moll is a 39-year hospitality veteran, known for his unmatched insight into startup strategy, turnaround planning, and talent acquisition. As President of Restaurant Consulting Services, Inc. and its sister company Restaurant Recruiting Pros, he delivers full-spectrum solutions — from concept to culture.

His operational experience spans World’s Fair-scale foodservice, multi-unit ownership, and high-performance recruiting. He’s been featured on ABC’s Nightline, authored two books, and founded “Mystery Shoppers,” a global brand trusted by operators worldwide.

Kevin blends street-smart practicality with boardroom-level advisory, making him an invaluable partner to entrepreneurs, executives, and investors alike. Whether launching a new brand or revitalizing an underperforming venue, his work bridges hospitality intuition with data-driven execution — unlocking growth where others see obstacles.

Lu Schildmeyer, restaurant and bar design specialist with deep expertise in foodservice facility consulting

Lu Schildmeyer

FCSI Designer | Founder,
LU S Design Associates

Lu Schildmeyer has shaped more than 2,800 hospitality environments across the U.S. and Canada — including over 700 restaurants and 600 bars. With nearly four decades of experience in foodservice facility design, custom stainless steel millwork, and health code compliance, Lu is a trusted specialist for operators who demand technical precision and operational fluidity.

His work spans every segment of the hospitality industry — from boutique bistros to high-volume entertainment venues — where performance, durability, and code alignment must all coexist. Known for practical layouts and forward-thinking BOH integration, Lu brings peace of mind to architects, developers, and chefs who want their kitchens to run as smoothly as their dining rooms.

As an FCSI member, Lu blends aesthetic coordination with engineer-grade accuracy. His shop drawings are regarded as gold standard in foodservice environments, and his ability to anticipate permitting, clearance, and sanitation requirements has saved clients time, risk, and rework at every stage of the build.

Craig Pendleton, food and beverage consultant with a focus on tribal gaming and high-performance dining operations

Craig Pendleton

F & B Consultant | Founder,
National Foodservice Consulting

With more than 50 years in the food and beverage industry, Craig Pendleton brings unmatched operational insight to every project he touches. From national brands to independent operators, his advisory work is grounded in deep experience and a no-nonsense approach to profitability, workflow, and guest experience.

Over the past three decades, Craig has helped launch more than 100 successful venues — including restaurants, casinos, and specialty dining concepts across the U.S. His consulting engagements focus on marrying smart design with real-world management, often bridging the gap between creative vision and operational execution.

Craig’s expertise is especially valued in Tribal gaming environments, where sovereignty, cultural fluency, and long-term sustainability must align. He approaches these partnerships with respect, precision, and a commitment to self-determination — creating foodservice strategies that support community goals while optimizing guest satisfaction and fiscal results.

Colin Addley, global construction strategist and food and beverage consultant for hospitality development

COLIN ADDLEY, MCIOB

Construction Strategist | Founder,
ADDMORE Services

Colin Addley is a Chartered Builder (MCIOB) with over 40 years of experience leading complex construction projects across six continents. His expertise spans construction management, quantity surveying, and international development strategy — particularly in hospitality, resorts, and commercial spaces.

As the founder of ADDMORE Services, Colin works with a global network of professionals he’s personally vetted — including quantity surveyors, site engineers, project managers, and planners — all of whom operate with the same rigor and high-performance mindset. He’s directed projects in the UK, UAE, South Africa, Germany, and North America, earning a reputation for precise execution on fast-moving, high-stakes initiatives.

Whether it’s developing a new food hall in Johannesburg, overseeing a hospitality rollout in the Gulf States, or helping U.S. brands expand overseas, Colin brings logistical clarity and on-the-ground insight to every venture. His work consistently blends old-school project discipline with contemporary collaboration — making him a powerhouse for any project that spans borders, teams, or time zones.

Rick Uzubell, bar design expert and food and beverage consultant specializing in integrated bar systems

Rick Uzubell

Bar Design Expert | Founder,
Cabaret Design Group

As the creator of Integrated Bar Design, Rick specializes in solving complex spatial and system challenges that fall outside the scope of conventional design disciplines. His work bridges compliance and performance, translating regulatory constraints into highly efficient, service-forward bar environments.

Rick’s signature solutions—curved bar geometries, modular steel systems, and ADA-first layouts—have shaped high-performing venues across the U.S., Canada, and offshore markets. These systems are trusted by operators who demand high-volume throughput without compromising service quality, accessibility, or design integrity.

To support larger and more complex hospitality projects, Rick works alongside a vetted network of strategic partners in commercial foodservice, kitchen planning, and hospitality operations. This collaborative model allows Cabaret Design Group to deliver fully coordinated food-and-beverage environments—where bar and kitchen design are aligned from the earliest planning stages.

A prolific educator and industry voice, Rick has authored over 100 published articles and produced more than 80 instructional YouTube videos on bar design, equipment planning, and operational strategy. Through this work, he has helped thousands of restaurateurs, architects, and consultants rethink not just how bars look—but how they function, scale, and perform in the real world.